物件コード G25100201
物件名 Bond Garage タイプ 共用バイクガレージ
号室 No.13 賃料 ¥15,000
住所 広島市中区河原町14-12 敷金 1ヶ月
最寄駅 広島電鉄江波線 舟入町電停 徒歩2分 礼金 1ヶ月
建物構造 鉄筋コンクリート造 共益費・管理費 -
間取   駐車場料金  
間取詳細   駐車場在否  
面積m2   火災保険  
階/階建 1階/10階建 取引態様 仲介
向き   仲介手数料 1ヶ月
築年月 2017年7月 契約期間 2年
現況 空き 引渡時期 即時
保証会社利用 必須 いえらぶ安心保証 契約時:15,000円 月額:500円
特色 大型バイク駐輪可、バイク駐輪可、高セキュリティガレージ(バイク)、スタイリッシュ、1F、平坦、防犯カメラ、24時間セキュリティ、上水道、駅近(徒歩5分内)、ロードサイド
デイズガイド ☆☆☆
Webコメント 大通り沿いに建つ10階建てマンションの1F部。そこは一見シャッターを下ろした店舗。そうとしか見えません。まさかこのシャッターの向こう側にあんな施設があろうとは。そんな隠れ家的バイクガレージがBond Garage。

シャッターの開閉は専用のリモコンキーで実施。バイクに乗ったままスマート且つ迅速に隠出入りが可能。その様子は警備会社にてモニタリングされており、怪しげな行為があれば警備員が駆け付けるサービスが標準装備。万一閉め忘れた場合も一定時間経過後にオートクローズする仕組みなのでご安心あれ。

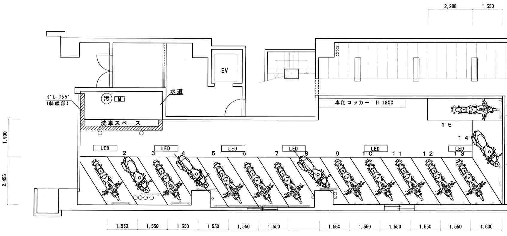
内部は15区画に線引きされたバイクガレージが並んでおり、フロントタイヤをホイールクランプにセットして駐輪するスタイルが原則。但しサイズが合わない場合はバイクが転倒する恐れがあるため、事前にサイズ確認と実際にセットしての調整が必要となります。尚、フロントタイヤのサイズが合わない場合は取り外しも可。

設備の充実ぶりも紹介致しましょう。ご契約者専用ロッカーはヘルメットも収納可。鍵は各自でご準備ください。二重のセキュリティの為にバイクのフロントホイールをワイヤー等で固定するワイヤーロックバーは全区画に標準装備。グレーチングで囲まれた洗車スペースも嬉しい設備ですね。人感センサーライト&換気システムで明るくクリーンなガレージを実現。冬場長期間乗らない時期も複数箇所設置されたコンセントに充電器を差し込んでバッテリー上がりを防止する事が出来ます。

安心安全に保管するだけがバイクガレージじゃありません。洗車もしたいし充電もしたい。愛車を常にベストコンディションに保ちたい。屋外コンテナだと灼熱の夏は庫内が煮えますが分厚いコンクリートに囲まれた当ガレージはバイクにとって最上級の保管環境と言えます。愛車を大切にする方に是非ご利用頂きたいガレージです。

※ 契約時にリモコン交換代として22,000円(税込)を申し受けます。
Bond Garage特設ページも併せてご覧ください。


見学・入居申込はこちらから



詳細 拡大してご覧になれます 拡大してご覧になれます 拡大してご覧になれます 拡大してご覧になれます 拡大してご覧になれます 拡大してご覧になれます 拡大してご覧になれます 拡大してご覧になれます 拡大してご覧になれます 拡大してご覧になれます 拡大してご覧になれます 拡大してご覧になれます 拡大してご覧になれます 拡大してご覧になれます 拡大してご覧になれます 拡大してご覧になれます 拡大してご覧になれます 拡大してご覧になれます 拡大してご覧になれます 拡大してご覧になれます 拡大してご覧になれます
掲載されている物件データが現況と異なる場合は現況を優先します
ガレージングデイズ的物件格付け

※※※デイズガイドの見方※※※

  建物及び周辺環境の状況
         ★       その分野(戸建/マンション/シングル/ファミリー他)で特に優れている物件
        ★★     極めて良質であり、多少無理をしてでも住む価値がある物件
       ★★★   そこに比類なきユニークさを併せ持ち、住む事を想像するだけで心躍る物件

  車/バイクガレージ及び周辺道路の状況
         ☆       愛車が雨風に晒されない、又は、広々とした駐車スペースのある物件
        ☆☆     いたずら防止策が講じられて安全に保管できるガレージ付き物件
       ☆☆☆   ビルトインガレージ等、ガレージライフを謳歌することのできる物件