物件コード 26012401
物件名 戸坂大上ガレージ付戸建 タイプ 戸建
号室 A 賃料 ¥110,000
住所 広島市東区戸坂大上4丁目28-15 敷金 3ヶ月
最寄バス停 広電バス戸坂南2丁目バス停 停歩3分 礼金 1ヶ月
建物構造   共益費・管理費 -
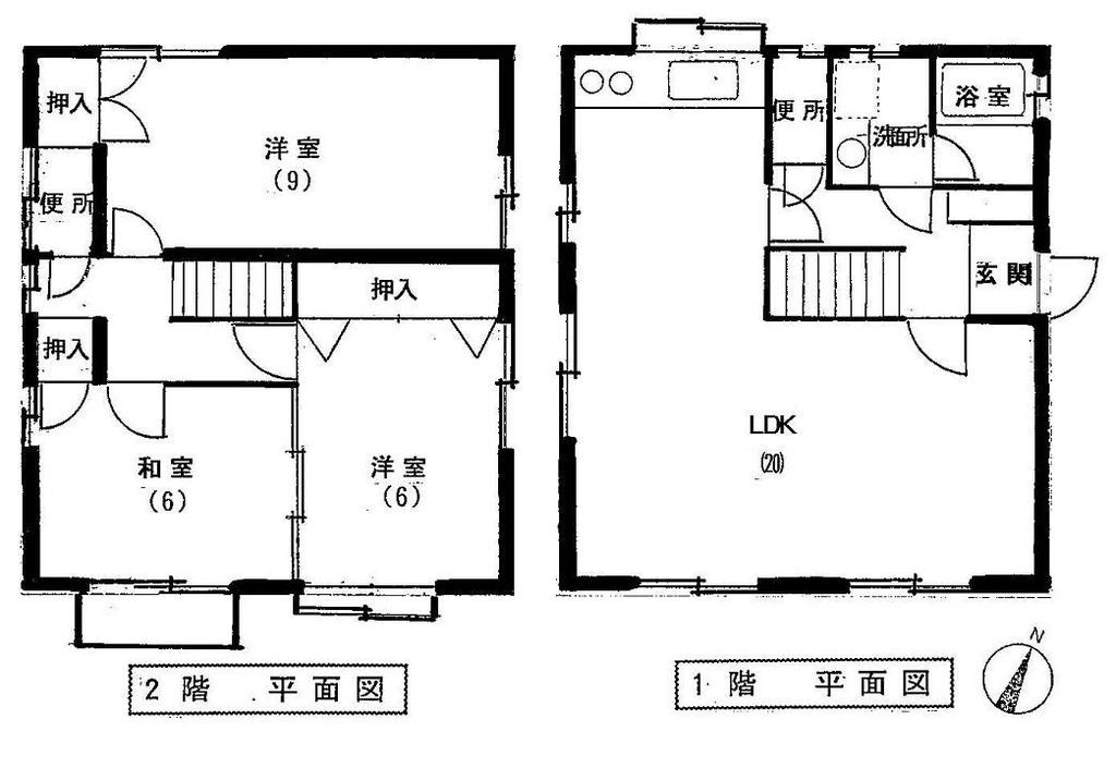
間取 3LDK 駐車場料金 -
間取詳細 (1F)LDK20、(2F)洋9、(2F)洋6、(2F)和6 駐車場在否 シャッター付
面積m2 92.74m2 火災保険 要加入
階/階建 --/2階建 取引態様 仲介
向き 仲介手数料 1.1ヶ月
築年月 1992年3月 契約期間 2年
現況 空家 引渡時期 即時
保証会社利用 必須 全保連株式会社 契約時:賃料総額の50% 年額:13,000円
特色 シャッターガレージ、掘込ガレージ、2台以上駐車可、大型バイク駐輪可、高セキュリティガレージ(車)、高セキュリティガレージ(バイク)、雛段、エアコン、ガスコンロ可、バス・トイレ別室、室内洗濯機置き場、温水洗浄便座、都市ガス、モニター付インターホン
デイズガイド ★★☆☆
Webコメント 堀込ガレージ内に2台駐車可。車とバイク複数台の組み合わせも可。シャッターは手動ながら閉める事が出来ます。

ガレージのサイズは、間口4.8m×奥行5.3m×高さ2.2m(照明器具考慮せず)。コンセントと照明スイッチが備わります。照明は人感センサー連動型。

2025年2月にキッチン、浴室、トイレ、洗面取り替え済み。全室クロス、床(フローリング等)貼り替え済みです。

詳細 拡大してご覧になれます 拡大してご覧になれます 拡大してご覧になれます 拡大してご覧になれます 拡大してご覧になれます 拡大してご覧になれます 拡大してご覧になれます 拡大してご覧になれます 拡大してご覧になれます 拡大してご覧になれます 拡大してご覧になれます 拡大してご覧になれます 拡大してご覧になれます 拡大してご覧になれます 拡大してご覧になれます 拡大してご覧になれます 拡大してご覧になれます 拡大してご覧になれます 拡大してご覧になれます 拡大してご覧になれます 拡大してご覧になれます
掲載されている物件データが現況と異なる場合は現況を優先します
ガレージングデイズ的物件格付け

※※※デイズガイドの見方※※※

  建物及び周辺環境の状況
         ★       その分野(戸建/マンション/シングル/ファミリー他)で特に優れている物件
        ★★     極めて良質であり、多少無理をしてでも住む価値がある物件
       ★★★   そこに比類なきユニークさを併せ持ち、住む事を想像するだけで心躍る物件

  車/バイクガレージ及び周辺道路の状況
         ☆       愛車が雨風に晒されない、又は、広々とした駐車スペースのある物件
        ☆☆     いたずら防止策が講じられて安全に保管できるガレージ付き物件
       ☆☆☆   ビルトインガレージ等、ガレージライフを謳歌することのできる物件